一覧に戻る

川越市稲荷町 中古戸建 成約済み

 2025年10月25日時点

成約済み

外観写真

1F

2F

3F

LDK

キッチン

洋室

浴室

和室

価格 ---万円
住所・最寄り駅 川越市稲荷町
東武東上線 上福岡駅 徒歩16分
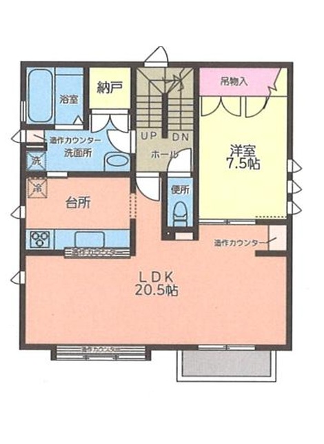
間取り/間取り詳細 3SLDK  和室7帖 / K4.5帖 / LDK20.5帖 / 洋室7.5帖 / 洋室10帖 / 洋室6帖 築年月 2007年3月
建物面積/土地面積 144.4㎡/105.9㎡ 階数 地上3階

川越市稲荷町 中古戸建 成約済みのPRポイント


設備・条件

  • トイレ2か所

  • 駐車場2台以上

  • ビルトインガレージ

  • サービスルーム(納戸)

  • 和室

  • リビングダイニング15畳以上

  • 対面キッチン

  • システムキッチン

  • 食器洗い乾燥機

  • IHクッキングヒーター

  • 浴室乾燥機あり

  • バス・トイレ別

  • 洗濯機置き場

  • 独立洗面台

  • シャワートイレ

  • バルコニー

  • ウォークインクローゼット

川越市稲荷町 中古戸建 成約済みの物件概要

住所 川越市稲荷町
交通機関 東武東上線 上福岡駅 徒歩16分
間取り/間取り詳細 3SLDK / 和室7帖 / K4.5帖 / LDK20.5帖 / 洋室7.5帖 / 洋室10帖 / 洋室6帖
建物面積 144.4㎡ 土地面積 105.9㎡
計測方法
主要採光面 建物構造 木造
都市計画 市街化区域
階数 地上3階 築年月 2007年3月
築年月備考
設備・条件 トイレ2か所/駐車場2台以上/ビルトインガレージ/サービスルーム(納戸)/和室/リビングダイニング15畳以上/対面キッチン/システムキッチン/食器洗い乾燥機/IHクッキングヒーター/浴室乾燥機あり/バス・トイレ別/洗濯機置き場/独立洗面台/シャワートイレ/バルコニー/ウォークインクローゼット/
水道 上下水道 ガス オール電化
土地権利 所有権のみ セットバック
接道状況 一方
接道1 北西側 公道 幅員10.0m
地目 宅地 用途地域 第一種中高層住居専用地域
建ぺい率 60% 容積率 200%
引渡 相談 地勢
現況 空家 国土法届出
取引形態 仲介 物件管理コード 2025090704
備考・特記事項 図面と現況に相違がある場合、現況優先とします。
オール電化仕様
司法書士は売主指定です。
問い合わせ先 東上住宅 株式会社 電話番号 049-250-5555
建築確認番号