一覧に戻る

川越市今成2丁目 新築戸建

 2026年01月24日時点

販売中

外観イメージパース

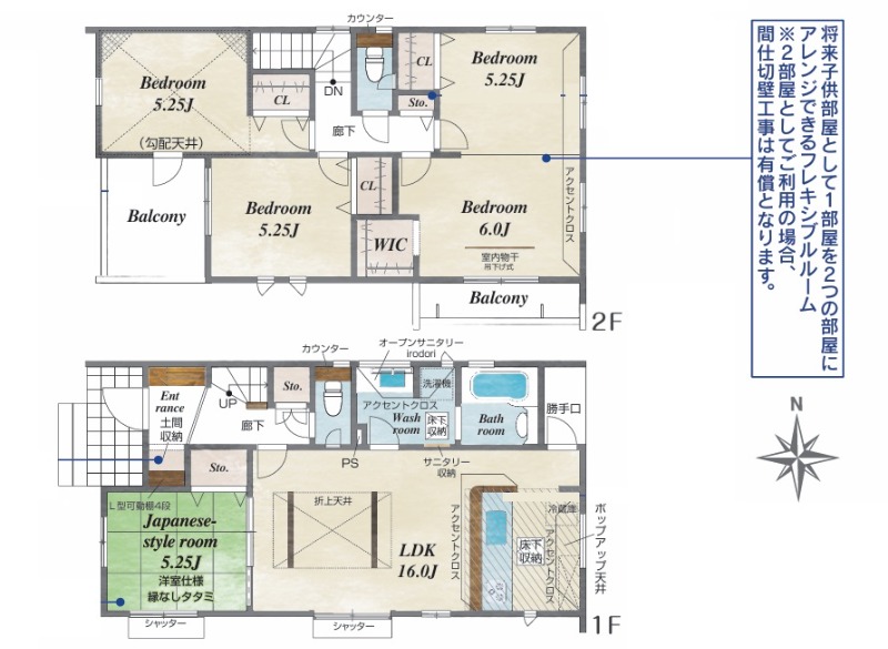
間取り図

区画図

価格 4,490万円
住所・最寄り駅 川越市今成2丁目
東武東上線 川越市駅 徒歩23分
間取り/間取り詳細 4LDK  LDK16.0帖 / 和室5.25帖 / 洋室11.25帖 / 洋室5.25帖 / 洋室5.25帖 築年月 2026年3月
建物面積/土地面積 104.2㎡/145.5㎡ 階数 地上2階

川越市今成2丁目 新築戸建のPRポイント


設備・条件

  • 耐震構造

  • 免震構造

  • 制震構造

  • 住宅性能評価付き

  • 長期優良住宅

  • トイレ2か所

  • 駐車場2台以上

  • 24時間換気システム

  • TVモニタ付インターホン

  • 間取り変更可能

  • 和室

  • リビングダイニング15畳以上

  • 対面キッチン

  • システムキッチン

  • 食器洗い乾燥機

  • 給湯

  • 浴室乾燥機あり

  • 追い焚き

  • バス・トイレ別

  • 洗濯機置き場

  • 独立洗面台

  • シャワートイレ

  • シャンプードレッサー

  • 2面以上バルコニー

  • ウォークインクローゼット

  • 床下収納

  • クローゼットシューズボックス

  • フローリング

川越市今成2丁目 新築戸建の物件概要

住所 川越市今成2丁目
交通機関 東武東上線 川越市駅 徒歩23分
間取り/間取り詳細 4LDK / LDK16.0帖 / 和室5.25帖 / 洋室11.25帖 / 洋室5.25帖 / 洋室5.25帖
建物面積 104.2㎡ 土地面積 145.5㎡
計測方法 登記
主要採光面 建物構造 木造
都市計画 市街化区域
階数 地上2階 築年月 2026年3月
築年月備考
設備・条件 耐震構造/免震構造/制震構造/住宅性能評価付き/長期優良住宅/トイレ2か所/駐車場2台以上/24時間換気システム/TVモニタ付インターホン/間取り変更可能/和室/リビングダイニング15畳以上/対面キッチン/システムキッチン/食器洗い乾燥機/給湯/浴室乾燥機あり/追い焚き/バス・トイレ別/洗濯機置き場/独立洗面台/シャワートイレ/シャンプードレッサー/2面以上バルコニー/ウォークインクローゼット/床下収納/クローゼットシューズボックス/フローリング/
水道 公営水道・本下水 ガス 都市ガス
土地権利 所有権のみ セットバック
接道状況 三方
接道1 北側 公道 幅員4.0m
接道2 南側 公道 幅員 4.0m
地目 宅地 用途地域 第一種低層住居専用地域
建ぺい率 50% 容積率 80%
引渡 相談 地勢
現況 未完成 国土法届出 不要
取引形態 仲介 物件管理コード 2026012402
備考・特記事項 盛土規制、都市再生特別措置法。
TVアンテナ(電波障害等によるケーブルTV・共聴アンテナ)の申込はお客様負担となります。
電気供給のため、敷地内に電柱及び支線が入る場合がございます。
図面と現況に相違がある場合、現況優先とします。
司法書士、土地家屋調査士は売主指定です。
問い合わせ先 東上住宅 株式会社 電話番号 049-250-5555
建築確認番号 第25UDI1W建09847号