2026年02月26日時点
販売中
| 価格 | 3,380万円 | ||
| 住所・最寄り駅 | 坂戸市鶴舞2丁目 東武東上線 坂戸駅 徒歩33分 |
||
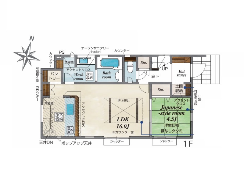
| 間取り/間取り詳細 | 4LDK LDK16帖 / 和室4.5帖 / 洋室11帖 / 洋室5.25帖 / 洋室5.25帖 | 築年月 | 2026年1月 |
| 建物面積/土地面積 | 104.1㎡/198㎡ | 階数 | 地上2階 |
耐震構造
制震構造
外断熱
住宅性能評価付き
長期優良住宅
前道6m以上
トイレ2か所
駐車場2台以上
24時間換気システム
TVモニタ付インターホン
間取り変更可能
和室
リビングダイニング15畳以上
食器洗い乾燥機
パントリー
給湯
コンロ3口以上
浴室乾燥機あり
追い焚き
バス・トイレ別
洗濯機置き場
独立洗面台
シャワートイレ
シャンプードレッサー
2面以上バルコニー
床下収納
フローリング
| 住所 | 坂戸市鶴舞2丁目 | ||
| 交通機関 | 東武東上線 坂戸駅 徒歩33分 | ||
| 間取り/間取り詳細 | 4LDK / LDK16帖 / 和室4.5帖 / 洋室11帖 / 洋室5.25帖 / 洋室5.25帖 | ||
| 建物面積 | 104.1㎡ | 土地面積 | 198㎡ |
| 計測方法 | |||
| 主要採光面 | 建物構造 | 木造 | |
| 都市計画 | 市街化区域 | ||
| 階数 | 地上2階 | 築年月 | 2026年1月 |
| 築年月備考 | |||
| 設備・条件 | 耐震構造/制震構造/外断熱/住宅性能評価付き/長期優良住宅/前道6m以上/トイレ2か所/駐車場2台以上/24時間換気システム/TVモニタ付インターホン/間取り変更可能/和室/リビングダイニング15畳以上/食器洗い乾燥機/パントリー/給湯/コンロ3口以上/浴室乾燥機あり/追い焚き/バス・トイレ別/洗濯機置き場/独立洗面台/シャワートイレ/シャンプードレッサー/2面以上バルコニー/床下収納/フローリング/ | ||
| 水道 | 公営水道、本下水 | ガス | 集中プロパンガス |
| 土地権利 | 所有権のみ | セットバック | |
| 接道状況 | 一方 | ||
| 接道1 | 東側 公道 幅員6.0m | ||
| 地目 | 宅地 | 用途地域 | 第一種低層住居専用地域 |
| 建ぺい率 | 50% | 容積率 | 80% |
| 引渡 | 相談 | 地勢 | |
| 現況 | 空家 | 国土法届出 | 不要 |
| 取引形態 | 仲介 | 物件管理コード | 2026022201 |
| 備考・特記事項 | 都市再生特別措置法。TVアンテナ(電波障害等によるケーブルTV、共聴アンテナ)の申込みはお客様負担となります。電気の供給の為、敷地内に電柱及び支線が入る場合があります。図面と現況に相違がある場合は現況優先にてご了承願います。司法書士、土地家屋調査士は売主指定とさせていただきます。 | ||
| 問い合わせ先 | 東上住宅 株式会社 | 電話番号 | 049-250-5555 |
| 建築確認番号 | 第25UDI1W建07620号 | ||
会員登録のメリット
①データ連携機能搭載
いつでも、どこでもPCやスマホ、タブレットなどで同じ状況で閲覧いただけます。
②物件比較機能
チェックした物件を様々な条件を並べて比較できますので絞り込みに便利です。
